Bérbe adná ingatlanát?

Budapest, III. kerület, Ürömfű utca

Kiadó 103 m2 -es ház, panorámás kilátással

Gyulai Zoltán

+36709355766
Központi szám: +36/70-9355762


    • 4 szobás103 m2
    • Bérleti díj: 699 000 Ft/hó
    • Kaució: 1 398 000 Ft
    • Rezsi: 40 000 Ft
    • Energiatanúsítvány: A+

Paraméterek:


  • Amerikai konyha: Nem
  • Beköltözhető: 2026-02-06
  • Berendezés: Berendezett, gépesített
  • Dohányzás engedett: Nem
  • Energiatanúsítvány: A+
  • Épület szintjei: Egyszintes ház
  • Fűtés: Padlófűtés
  • Kilátás: Panorámás
  • Méret: 103 m2
  • Minimum bérleti idő: 6 hónap
  • Parkolás: Telken parkoló
  • Szobák száma: 4
  • Telek terület: 150 m2
Nyomtatás

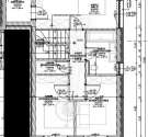
III. kerületben, az Aranyhegyen, az Ürömfű utcában kiadó egy 2025-ben épült kis lakóparkban lévő, 103 m2 hasznos alapterületű, 4 szobás (nappali + 3 szoba), BELSŐ KÉTSZINTES, DUPLAKOMFORTOS (2 fürdőszoba, 2 WC), BERENDEZETT-GÉPESÍTETT, SAJÁT KERTKAPCSOLATOS, TERASZOS (földszinti 19 m2, emeleti 7 m2), VILÁGOS, CSENDES, ÚJÉPÍTÉSŰ IKERHÁZ-FÉL kiváló alaprajzi elosztással, azonnali költözési lehetőséggel.

A modern gépészetnek és energetikai besorolásnak köszönhetően a rezsi alacsonyan tartható. Hőszivattyú segítségével PADLÓFŰTÉS ÉS MENNYEZETI HŰTÉS-FŰTÉS biztosított minden évszakban az igény szerinti komfortérzet.

Parkolás: telken belül 2 személygépjármű részére.

Az alsó szinten: tágas nappali terasz-és kertkapcsolattal + közlekedő + konyha és étkező + fürdőszoba sarokzuhanyzóval és WC-vel.
A felső szinten: szülői hálószoba + 2 szoba + kádas fürdőszoba WC-vel + közlekedő + háztartási helység + gépészeti helység + panorámás terasz, ami a 2 szobából egyaránt megközelíthető.

Rezsi (villany, víz): mérőórák alapján fogyasztás szerint.

Kaució: 2 havi.
Akár 6 hónapra is bérelhető.
Szívesen látjuk a gyermekes, illetve kisállattal rendelkező bérlőket is.

Részletesebb információk és/vagy lakásbemutatás miatt keressen elérhetőségeimen.

Ürömfű utca
  • Ürömfű utca-budapest_iii_keruelet_ueroemfu_utca546997_1.jpg
  • Ürömfű utca-budapest_iii_keruelet_ueroemfu_utca546998_2.jpg
  • Ürömfű utca-budapest_iii_keruelet_ueroemfu_utca546999_3.jpg
  • Ürömfű utca-budapest_iii_keruelet_ueroemfu_utca547000_4.jpg
  • Ürömfű utca-budapest_iii_keruelet_ueroemfu_utca547001_5.jpg
  • Ürömfű utca-budapest_iii_keruelet_ueroemfu_utca547002_6.jpg
  • Ürömfű utca-budapest_iii_keruelet_ueroemfu_utca547003_7.jpg
  • Ürömfű utca-budapest_iii_keruelet_ueroemfu_utca547004_8.jpg
  • Ürömfű utca-budapest_iii_keruelet_ueroemfu_utca547005_9.jpg
  • Ürömfű utca-budapest_iii_keruelet_ueroemfu_utca547006_10.jpg
  • Ürömfű utca-budapest_iii_keruelet_ueroemfu_utca547007_11.jpg
  • Ürömfű utca-budapest_iii_keruelet_ueroemfu_utca547008_12.jpg
  • Ürömfű utca-budapest_iii_keruelet_ueroemfu_utca547009_13.jpg
  • Ürömfű utca-budapest_iii_keruelet_ueroemfu_utca547010_14.jpg
  • Ürömfű utca-budapest_iii_keruelet_ueroemfu_utca547011_15.jpg
  • Ürömfű utca-budapest_iii_keruelet_ueroemfu_utca547012_16.jpg
  • Ürömfű utca-budapest_iii_keruelet_ueroemfu_utca547013_17.jpg
  • Ürömfű utca-budapest_iii_keruelet_ueroemfu_utca547014_18.jpg
  • Ürömfű utca-budapest_iii_keruelet_ueroemfu_utca547015_19.jpg
  • Ürömfű utca-budapest_iii_keruelet_ueroemfu_utca547016_20.jpg
  • Ürömfű utca-budapest_iii_keruelet_ueroemfu_utca547017_21.jpg
  • Ürömfű utca-budapest_iii_keruelet_ueroemfu_utca547018_22.jpg
  • Ürömfű utca-budapest_iii_keruelet_ueroemfu_utca547019_23.jpg
  • Ürömfű utca-budapest_iii_keruelet_ueroemfu_utca547020_24.jpg
  • Ürömfű utca-budapest_iii_keruelet_ueroemfu_utca547021_25.jpg
  • Ürömfű utca-budapest_iii_keruelet_ueroemfu_utca547022_26.jpg
  • Ürömfű utca-budapest_iii_keruelet_ueroemfu_utca547023_27.jpg
  • Ürömfű utca-budapest_iii_keruelet_ueroemfu_utca547024_28.jpg

Hasonló ingatlanok


Ürömfű utca

III. kerületben, az Aranyhegyen, az Ürömfű utcában kiadó egy 2025-ben épült kis lakóparkban lévő, 103 m2 hasznos alapterületű, 4 szobás (nappali + 3 szoba), BELSŐ KÉTSZINTES, DUPLAKOMFORTOS (2 fürdőszoba, 2 WC), BERENDEZETT-GÉPESÍTETT, SAJÁT KERTKAPCSOLATOS, TERASZOS (földszinti 19 m2, emeleti 7 m2), VILÁGOS, CSENDES, ÚJÉPÍTÉSŰ IKERHÁZ-FÉL kiváló...

Ürömfű utca

Budapest, III. kerület

103 m2 | 4 szoba | Kiadó ház
699,000 Ft/hó Részletek
Mókus utca

PRÉMIUM MINŐSÉGŰ, ÚJÉPÍTÉSŰ IKERHÁZ KIADÓ DIÓSDON MODERN MEGJELENÉSBEN! Diósd legkeresettebb részén, Diósdligeten kínálok bérbe vételre egy vadonatúj, 145 m² alapterületű, modern megjelenésű ikerházat az alábbi főbb paraméterekkel: - 4 szoba (tágas nappali + 3 külön nyíló hálószoba), -...

Mókus utca

Diósd

145 m2 | 4 szoba | Kiadó ház
890,000 Ft/hó Részletek
Szanatórium utca

XII. kerületben, a Budakeszi erdőnél, a Szanatórium utcában kiadó egy 6 éve ÚJJÁÉPÍTETT, 152 nm-es, 5 szobás (nappali + 4 háló), légkondicionált, DUPLAKOMFORTOS, világos, hangulatos IKERHÁZ, KERTÉSZ ÁLTAL ÉPÍTETT KERTTEL. A telek 864 nm-es, a kertben automata öntözőrendszer található. Külön kis épületben...

Szanatórium utca

Budapest, XII. kerület

152 m2 | 5 szoba | Kiadó ház
600,000 Ft/hó Részletek